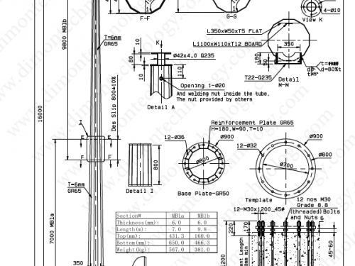
16m Lightning Column

72m/s
  • Code of Practice on Wind Effects in Hong Kong 2004 (CoP WE 2004)
  • Explanatory Materials to the Code of Practice on Wind Effects 2004 (EM CoP WE 2004)
  • Code of Practice for the Structural Use of Steel 2011 (CoP SUOS 2011)
  • BS EN 40-3-1:2013 – Lighting Columns Part 3-1: Specification for characteristic loads
  • BS EN 40-3-3:2013 – Lighting Columns Part 3-3: Verification by calculation
  • BS EN 1991-1.4-2005 (2010) Wind Actions
  • Guidelines for Converting between Various Wind Averaging Periods in Tropical Cyclone
  • Conditions (WMO/TD-No 1555)

Product Download Tab

16m Lightning Column and Wind Load Design Report