RX Pole -Dia 114mm

72m/s Pole with CCTV

 

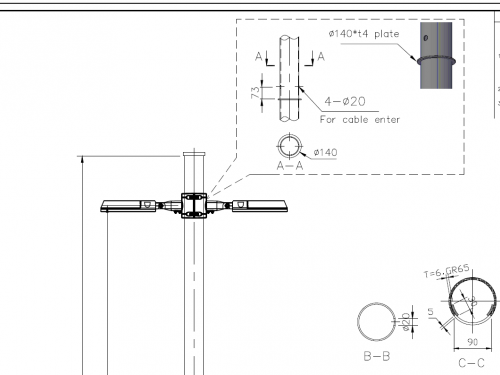
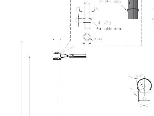
  • Short Arm Pole
  • Street Lighting or Garden Lighting  Pole equipped with short spigot arm suited for a wide range of applications ranging from a residential area  or park area.
  • Special consideration is catered for ease of storage while facilitating maintenance works. 
     

Technical Data

  • Specification 

    Code of Practice on Wind Effects in Hong Kong 2004 (CoP WE 2004)

    Explanatory Materials to the Code of Practice on Wind Effects 2004 (EM CoP WE 2004)

    Code of Practice for the Structural Use of Steel 2011 (CoP SUOS 2011)

    BS EN 40-3-1:2013 – Lighting Columns Part 3-1: Specification for characteristic loads

    BS EN 40-3-3:2013 – Lighting Columns Part 3-3: Verification by calculation

    BS EN 1991-1.4-2005 (2010) Wind Actions

    Guidelines for Converting between Various Wind Averaging Periods in Tropical Cyclone

    Conditions (WMO/TD-No 1555)

  • Certification-認證-Certificación-شهادة

Technical Drawing

Accessories

  • FLARE-G